Listing Tools

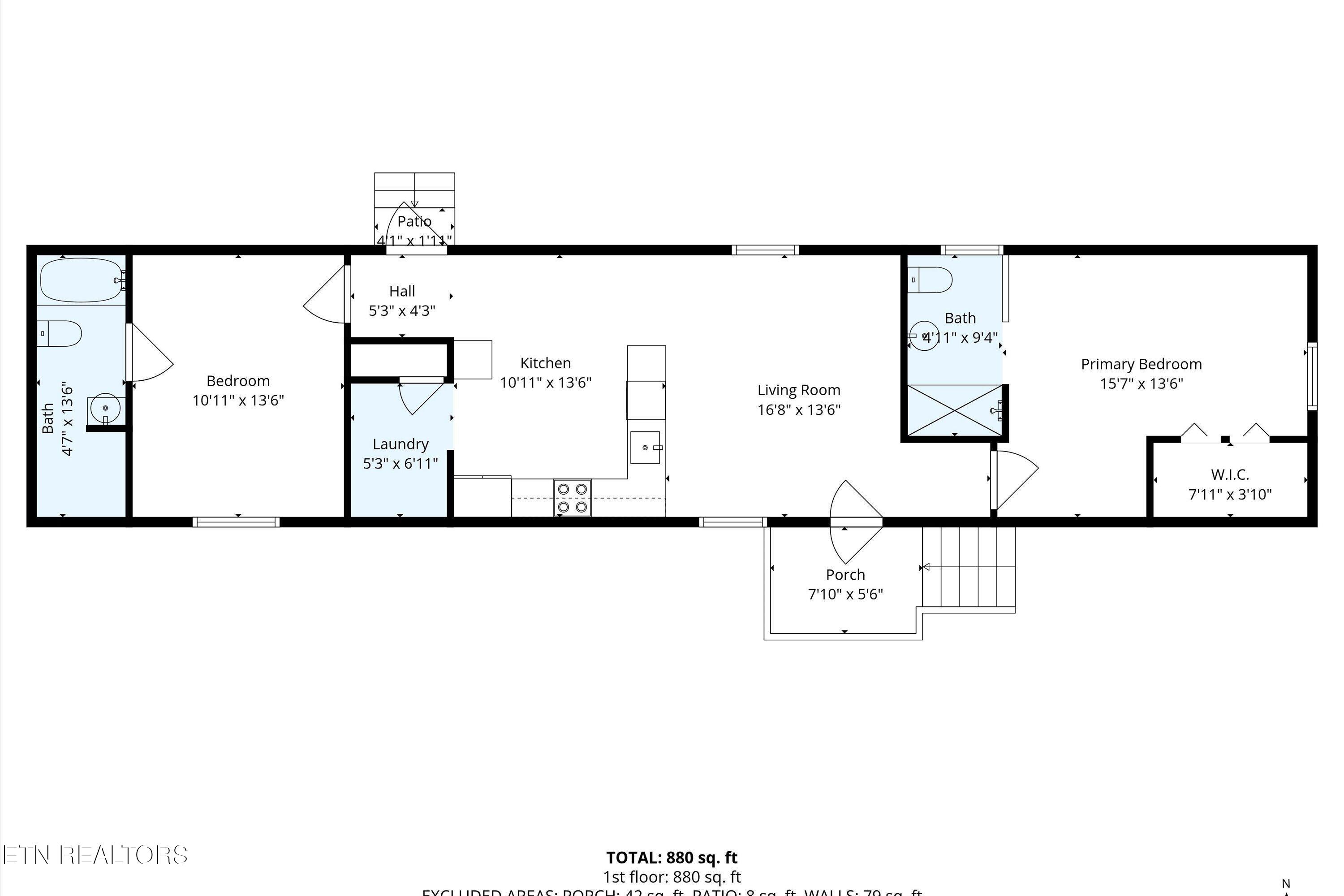
Welcome to this well-maintained and thoughtfully updated home, ideally located just off the Norris exit with quick access to local amenities and the Clinch River. Situated near a convenient boat ramp, this property offers an excellent opportunity for those who enjoy river life and easy outdoor access. Built on a permanent foundation and approximately 12 years old, this 924 sq. ft. home features two primary ensuites, each with updated bathrooms and beautifully tiled showers. The interior has been refreshed with durable LVP/vinyl flooring throughout, a remodeled kitchen equipped with a dishwasher, range/oven, and refrigerator, and generous walk-in closets. Washer and dryer hookups are in place, along with a dehumidifier for added comfort and efficiency. With no restrictions, a septic system, and a storage shed that conveys, this property offers flexibility and practicality. Being sold AS-IS with no repairs, it presents a fantastic opportunity for a primary residence, weekend getaway, or investment property in a highly accessible location close to the river and everyday conveniences.

Property Details of 574 Peach Orchard Road

Property Details

Interior Features

Utilities and Appliances

Other Details

Map Location

Listed by Kathy Pryputniewicz of Redfin

Based on information submitted to East Tennessee Realtors as of January 14, 2026 4:57 PM EST . All data is deemed reliable but is not guaranteed accurate by the MLS. All information should be independently reviewed and verified for accuracy. IDX information is provided exclusively for consumers’ personal, noncommercial use and may not be used for any purpose other than to identify prospective properties consumers may be interested in purchasing.

 
 

 

 

Hi there! How can we help you?

Contact us using the form below or give us a call.

Send Us A Message:

I agree to receive marketing and customer service calls and text messages from Tennessee Home Finders. To opt out, you can reply 'stop' at any time or click the unsubscribe link in the emails. Consent is not a condition of purchase. Msg/data rates may apply. Msg frequency varies. Privacy Policy.

Do not fill in this field:

This site is protected by reCAPTCHA and the Google Privacy Policy and Terms of Service apply.

Hi there! How can we help you?

Contact us using the form below or give us a call.

Send Us A Message:

Do not fill in this field:

This site is protected by reCAPTCHA and the Google Privacy Policy and Terms of Service apply.

Hi there! How can we help you?

Contact us using the form below or give us a call.

Send Us A Message:

Do not fill in this field:

This site is protected by reCAPTCHA and the Google Privacy Policy and Terms of Service apply.

Do not fill in this field:

This site is protected by reCAPTCHA and the Google Privacy Policy and Terms of Service apply.

Do not fill in this field:

This site is protected by reCAPTCHA and the Google Privacy Policy and Terms of Service apply.

Do not fill in this field:

This site is protected by reCAPTCHA and the Google Privacy Policy and Terms of Service apply.

$

Do not fill in this field:

This site is protected by reCAPTCHA and the Google Privacy Policy and Terms of Service apply.